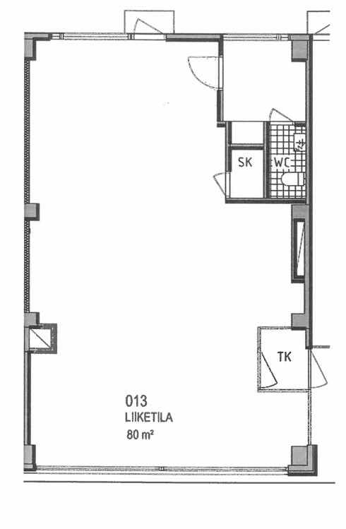
Vuokrataan moneen käyttöön soveltuva siisti, valoisa ja näkyvä katutason liiketila loistavalla sijainnilla, vain korttelin päässä torilta.
Tilasta löytyy ison avoimen tilan lisäksi vessa, keittiö sekä erillinen pieni varasto. Tilaan on myös asennettu viilentävä ilmalämpöpumppu. Tilan edessä tunnin ilmainen katuvarsipysäköinti (parkkikiekolla).
